くみのきモデルハウス見学会&家づくり相談会
開催日/10月12日(土)13日(日)

昨年、9月に大阪府大阪狭山市くみの木6丁目に完成した売却型モデルハウス”KUMIモデル”
10月12日・13日に見学会を開催いたします。
1日限定3組様。
見学会の後に、家づくり相談会も開催。
ぜひ、お越しください。WEB予約にてご来場の方には特典もご用意しております。
詳しくは本文最後をご覧ください!
こだわりポイント① 外部仕上

外壁はメンテナンスコストを考えて、金属サイディングを使用。
玄関周りの外壁や軒天井には天然木の杉材を使用しています。
お家に帰ってくると、杉の素敵なにおいにくるまれます。
玄関わきには杉板塀で囲われたウッドデッキスペース。
室内のリビング側から広く使う事が出来ます。
外構も必要以上にコンクリートで固めすぎず、緑化ブロックと玉砂利仕上げに。
シンボルツリーのアオダモや玄関アプローチわきの植栽スペースで
季節の移ろいを感じ取ることができます。
こだわりポイント② ゆったり収納 玄関土間

玄関土間は3帖の広々スペース。
ベビーキャリーなどそのまま置くこともできます。
小物置に便利な造作棚や、たっぷりと靴が収納出来るシューズボックスも完備。
片付けのやりやすい玄関周りになっています。
こだわりポイント③広々見渡せるLDK



延床面積27.5坪というコンパクトでありながら、狭さを感じさせない設計がこのお家のテーマ。
ダイニングキッチンは、落ち着ける誕生高さの2.2mとし、吹き抜けと組み合わせることで広がりを感じるようにしています。
吹抜は南に面して、高窓から明るい日の光を取り込むこともできます。
また、エアコンを使った全館空調のための空気の通り道としてもこの吹抜は役に立っています。
対面キッチンからはダイニング、リビング、リビング土間を通して、外部のウッドデッキまでを見通すことが。
ご家族みんなでコミュニケーションをとりながら、それぞれの居場所を考えたプランにしています。
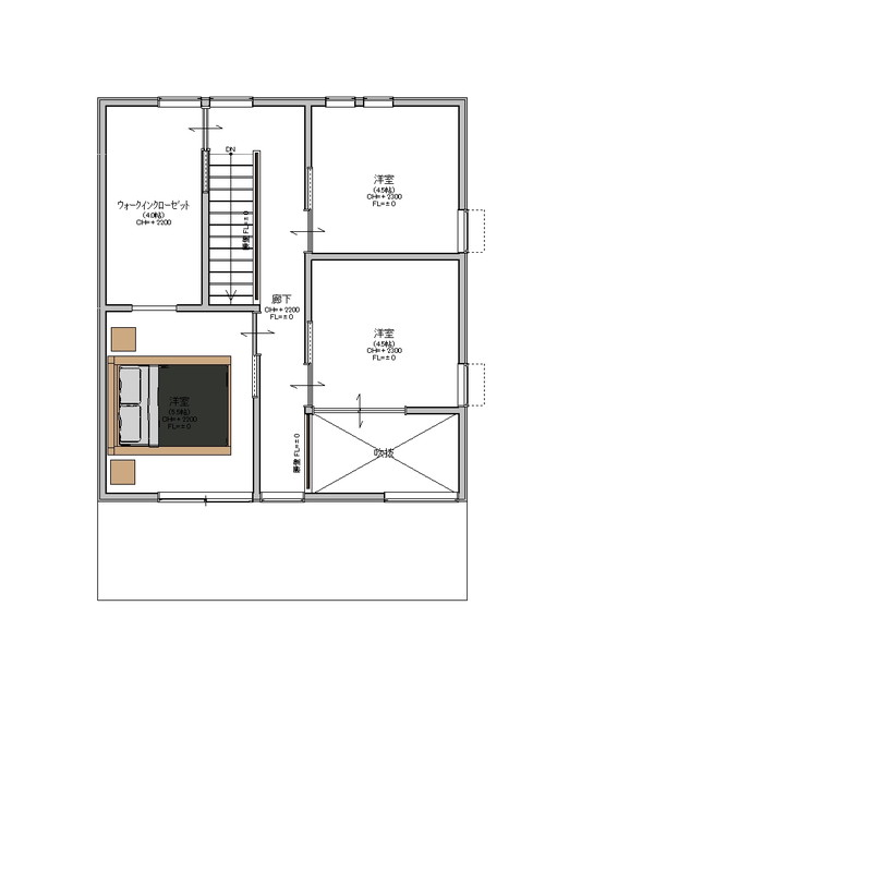
ポイント④ 2階も回遊動線に

3階は主寝室、子供室×2,ファミリークローゼットのレイアウト。
ファミリークローゼットはウォークスルー(通り抜け)方式として、廊下から回遊できる動線にしています。
ファミリークローゼットは4帖とかなりお広いので、一部を仕切ってテレワーク用の書斎スペースにすることも可能です。
ポイント⑤こだわりのインテリア

「豊かな暮らし心地」を家づくりのテーマにしているリーフアーキテクチャ。
前身が家具店という特徴を生かして、今も家具、キッチン、カーテンなどのインテリアをコーディネート提案をしています。
くみのきモデルハウスでは、新しいデザインの天然木ウォールナットキッチンを装備。
洗面台も、人気のモールテックスを使用したスタイリッシュは洗面台にしました。

家だけでは入れ物が出来たのと同じ。
そこに、家具が入って初めて、人が暮らしていける状態になります。
くみのきモデルハウスに展示している家具はどれも人気の家具たちばかり。
しかも、今回の販売会ではこれらの家具も全て込みでお届けいたします。
どれも、天然木を使った本物の家具たちばかり。
ご来場の際に実物を是非、ご確認ください。


家具に加えて、インテリアに欠かせない、照明やカーテン。
ダイニングに使用しているレクリントのペンダントブーケはデンマークが誇る世界の逸品。
リビングに使用しているハニカムサーモスクリーンは見た目だけでなく、夏や冬の断熱にすごい威力を発揮してくれます。
リネンのレースカーテンもリーフで人気の「リフリン」カーテンからセレクト。
良質なインテリアに囲まれた素敵な暮らしが実現します。
間取り


敷地面積 110.87㎡(33.54坪)
1階床面積 50.68㎡(15.33坪)
2階床面積 40.32㎡(12.20坪)
延床面積 91.00㎡(27.53坪)
総延べ床面積27.5坪に抑えたコンパクトなプラン。
コンパクトでありながら狭さを感じさせない設計を是非、体感ください。
全館空調のための吹き抜けの設置や、日射遮蔽のための軒庇の設計。
また、冬の日射取得のための高窓など、パッシブ設計を考慮したプランニングとなっています。
仕様
仕上材
外部 屋根 ガルバニウム鋼板立平葺き
壁 金属サイディング アイジー工業「ガルスパン」一部 屋久島地杉 無塗装
基礎 打放仕上
玄関扉 Ykkap イノベスト50
窓サッシ Ykkap APW330防火、エクセルシャノン、LIXIL FG+内窓(インプラス)
内部 土間床 墨モルタル
室内床 天然木アカシア無垢フローリング オイル仕上げ
壁天井 エコフリース
建具 リクシル ラシッサ
設備 第1種熱交換換気 マーベックス「澄家」
エアコン2台(1階床下エアコン・2階ホールエアコン)
太陽個発電 3.3KW シャープ社
性能
耐震等級3(許容応力度計算)
気密性能 C値0.4
断熱性能 Ua値0.3
長期優良住宅認定
保証・メンテナンス
家価値サポート60年加入済
「これからの普通の家」はどうあるべきかを考えて作られたこの「くみのきモデルハウス」
断熱等級は来年義務化される断熱等級4やZEH水準である断熱等級5を上回る断熱等級6。
それもギリギリの断熱等級6(Ua値0.46)ではなく、ダブル断熱によってUa値0.3といういわば断熱等級6.5のレベルに。
この断熱性能だからこそ可能になる、家庭用エアコンを利用した全館空調設計です。
見学会スケジュール
ご集合
ご予約時間認なりましたら、リーフ大阪狭山ショールーム(リーフビレッジ)へお越しください。
モデルハウスまでご案内させていただきます。
小さなお子様連れでチャイルドシートなど必要な場合は、お客様のお車での移動も可能です。
ご見学
弊社、設計担当者から、モデルハウスのご案内をさせていただきます。
広さや使い勝手など、実物に触れてご体感ください。
暑い日ですと、エアコンを使った全館空調の効果も体感いただけると思います。
ご質問などございましたら、お気軽にお問い合わせください。
相談会
ショールームへ戻り、個別相談会を開催させていただきます。
土地のお話し、資金のお話し、間取りのお話など、なんでもご相談ください。
住宅ローンのご紹介も可能です。
ご来場ご予約の方にデュフューザープレゼント

事前にご予約いただきましたお客様には特典といたしまして
デュフューザーをプレゼントさせていただきます。
お部屋が素敵な香りに包まれます。
小さなお子様連れも歓迎



相談会をさせていただくショールームには小さなお子様連れのお客様のために
キッズスペースやおむつ替え・授乳スペースも完備しております。
安心してお越しください。
販売価格
このモデルハウスはただいま、大切にお使いいただける方を募集中です。
販売価格は土地+建物+オプション合計4980万円のところ
3880万円(税込)
となっております。
| 土地価格 | 1500万円 | 敷地面積30坪 |
| 建物本体価格 | 2880万円 | 延床面積27.5坪 |
| 合計 | 4380万円 | |
| オプション | ||
| 家具インテリア照明 | 180万円 | ダイニングテーブル・ベッド |
| エアコン2台(全館空調) | 50万円 | |
| 太陽光発電(3.3KW) | 120万円 | |
| 外構 | 250万円 | |
| オプション合計 | 600万円 | |
| 総合計 | 4980万円 | 通常販売価格 |
| 最終販売価格 | 3880万円 | 税込 |
販売条件
*ご契約後、年内までにご入居頂ける方。
*販売代金以外に、登記費用、自治会費用、固定資産税分割金が必要です。
*住宅ローンご利用の場合は融資手数料等の経費が必要です。
*住宅ローンあっせんご希望のお客様は源泉徴収票2期分、運転免許証もしくは健康保険証(ご家族全員分)ご持参ください。
くみのきモデルハウス 見学会
【日程】 10月12日(土)13日(月)
【時間】 第1部:10:00~12:00 第2部:13:00~15:00 第3部:16:00~18:00
【集合場所】 株会社リーフ大阪狭山ショールーム(リーフビレッジ) 大阪狭山市茱萸木6丁目1946番
【参加費】 無料
【服装】 動きやすい服装がベストです。
| 10月 | 第1部:10時~12時 | 第2部:13時~15時 | 第3部:16時~18時 |
| 12日(土) | × | × | × |
| 13日(日) | 〇 | 〇 | 〇 |
| 14日(月祝) | × | 〇 | 〇 |
| 19日(土) | 〇 | 〇 | 〇 |
| 20日(月) | 〇 | 〇 | 〇 |
| 26日(土) | 〇 | 〇 | 〇 |
| 27日(日) | 〇 | 〇 | 〇 |
見学会に参加ご希望の方は
下記の「見学会予約フォーム」から、ご予約をお願いいたします。
追って弊社より当日のご案内をさせて頂きます。