2022/10/14
子供部屋はどう作る?
大阪で高性能×インテリア住宅を建てる
家具から始める家づくり、リーフの猪倉です。
今日は子供部屋大きさについて。
間取りの打ち合わせで子供室の大きさについてお聞きした時に
「大体6畳くらいかな~」と答えられる方は結構多いです。
リフォームなどのご依頼で訪問した際、2階に上がらせていただくと
かって子供部屋として使われていたであろう6畳間に荷物が詰め込まれ、
ほとんど使えない状態になっている場合が多い。
放っておくと物はどんどん増えますし置き場所があると
不要なものまで捨てずにどんどんたまっていく。
昭和50年代のころに建てられた住宅は宅地も80坪前後とかなり大きく
延べ床面積も40坪前後はざらにある。
それぐらいの大きさだと子供室に6帖取ってても問題はなかったのですが
最近は30坪前後のコンパクトな規模が主流。
昔の住宅ではあまり見られなかったようなシューズクロークやウォークインクローゼット、
ランドリースペース、家事室などいろいろな共用部分も増えてきた。
その中で子供部屋をどう確保するかは設計をするうえで結構大きな課題です。
ということで、今回は、実際に子供部屋の大きさをスタディしてみました。
6帖+クローゼット

クローゼットとは別にしっかりと6帖確保できるパターン。
14帖で2部屋とることができます。
子供さんが小さいときはクローゼットを反対の壁方向に移動して間仕切りを外したプランにする場合も多いです。
独立した部屋で寝るまで、家族で添い寝する使い方です。
かなりの余裕があるプランで、シングルベッドにデスク、本棚などをレイアウトしてもまだ2帖程度のスペースが空きます。
友達が遊びに来ても部屋の中で過ごせる広さ。
快適すぎると、籠りがちになってしまうかも(^^;
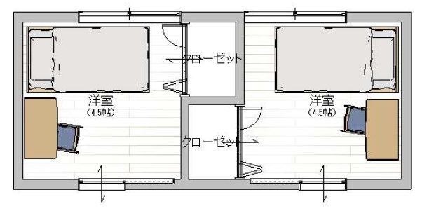
4.5帖+クローゼット

4.5帖のお部屋と0.75帖程度のクローゼットのパターン。
合計10.5帖で2部屋とることができます。
シングルベッドのほかに、デスクや
ドア位置によっては本棚もレイアウト可能です。
勾配天井などでロフトが取れる場合はベッド部分や収納部分をロフトの上に持ってくれば
上記プランのクローゼットの面積も無くなりますので2部屋で9帖で十分レイアウト可能。
そうなればかなりの広さが確保できます。
最近ではこれぐらいの広さが多いです。狭さを感じることはなく、完成見学会などでも
「これだけあったら十分です!」と言われる場合が多いです。
3.75帖+造作家具間仕切り

7.5帖の部屋を造作家具で間仕切ったプランです。
子供たちが将来、実家を巣立ち、夫婦だけになった時は
このまま残してても良いですし、造作家具部分を解体して
7.5帖の広い空間にすれば、お孫さんを連れて帰省した時の宿泊場所にもなります。
プランだけ見ると狭く感じられるかもしれませんが
部屋を移動することなくあらゆる場所に手が届くコンパクトさは意外と便利です。
収納は家族共用のウォークインクローゼットなど別に確保することで
その季節だけの衣類を置くようにすれば十分事足ります。
延床面積30坪以下のコンパクトプランで
LDKや共用の収納、ランドリースペースなどしっかりと確保したい時には
重宝するプランです。
3帖+ロフトベッド

究極の極小スペースがこちら。
6帖の部屋で3帖の子供部屋2室とるパターンです。
図面ではベッドが1台になっていますがこちらは2段ベッドを間仕切代わりに
あるいは造作工事でロフトベッドにしてスペースを節約しています。
最近は上がベッド、下がデスクと収納といったロフトベッドも安価なものが
市販されているのでそちらを2台、それぞれ外側の壁沿いに置いても良いですね。

造作工事でベッドで収納やデスク部分まで作り込めばすごく効率的な空間になります。
ちょっと学生寮っぽい雰囲気で大学時代、量暮らしの私には懐かしいかも(^^)
実例編
実例ということで、当社で施工した過去の事例から。
4.5帖に1帖のクローゼットを加えたパターン。
子供室のクローゼットはコスト削減も兼ねて、ドアをつけない場合がほとんど。
住んでから気になる場合はロールスクローンなどで仕切ることをお勧めしています。
最初は間仕切りの壁も作らずに子供さんが小さい間はこの部屋で家族全員でおやすみ。
一番多いパターンです。

こちらは大工さんに作ってもらったロフトベッド。
下の空間にはデスクやチェスト、ハンガーラックなどが収納できます。
かなり頑丈に作るので将来、取り外したいときはなかなか厄介ですが。

こちらは勾配天井を利用したロフト。
ロフト下の部屋部分はしっかり4.5帖取れています。
ロフトを就寝場所にすれば、下の部分はかなり余裕をもって使えますね。
写真には写っていませんが、取り外し式の木製はしごでの上り下りになります。

最近の子供部屋はこれらの例のように、あまり大きく取らず、コンパクト目なのがトレンド。
その代わり、リビング学習ができるように、LDKにデスクスペースを設ける例が増えてきました。
次回は「リビング学習スペース」についてまとめてみたいと思います。
それではまた!

******************************************
最後までお読みいただきありがとうございました!
ブログに書けないような内容を普段のメルマガ形式でお届けしております。
建築業界のヤミ・業者の本音もたまに書いてます↓
メルマガではこんなことを配信しています
読者さんの為になる話
最新の住宅事情
土地の考え方
間取りの考え方
お金の性質の事
高気密高断熱住宅のコツ
ブログでは書けない業界の裏話
読者様限定の見学会
ご登録はこちらから↓
【ほぼ日刊リーフ通信】メルマガ
解除はいつでも簡単にできま~す♪是非ご登録を!
**************************************

大阪で高性能×インテリアの注文住宅ならリーフアーキテクチュア
株式会社リーフ 代表 猪倉 厚
1級建築士・宅建士・インテリアコーディネーター
Youtubeチャンネル開設しました。チャンネル登録お願いします!
リーフアーキテクチャ
〒589-0013大阪狭山市茱萸木6丁目1946番
TEL 072(284)7144 FAX 072(284)7145
****************************************