2024/01/25
品質監査チェックのキックオフです

先日、第3者品質監査サービスのキックオフを行いました。
各協力業者さん、お仕事を終えてから弊社にお集まりいただき、ZOOMを利用して、
監査サービス会社様とのミーティングを行いました。
参加いただいた協力業者の皆さん、ありがとうございます!
施工中のチェックの重要性

工事期間中の施工チェックは、「瑕疵保険」の検査が主流です。
基礎工事の鉄筋配筋時、上棟時の接続金物施工時などが瑕疵保険会社の検査員の方が来られて第3者の目でチェックされます。
しかし、長い工事期間の中で、本来チェックすべきところはまだまだ無数にあります。
また、チェックの前提となる標準施工マニュアルやチェックリストが完備されていないと、
そもそもチェック自体もすることはできません。

第3者品質監査

今回、リーフアーキテクチャが導入したのはネクストステージさんの第3者品質監査サービス。
工事期間中、後戻りできない大切な工程の10段階で監査員の方にチェックしていただき、適正に工事がなされているかを記録に残していくサービスです。
第3者の目によって、チェックが入ることで、決められたタイミングでの工程のチェックが担保できるようになり、施工品質のアップに役立ちます。
いくら図面を書いても、最後は現場が正しくその通りに施工されているかが大切。
お客様に安心していただくとともに、我々自身の施工管理のレベルの向上につながります。

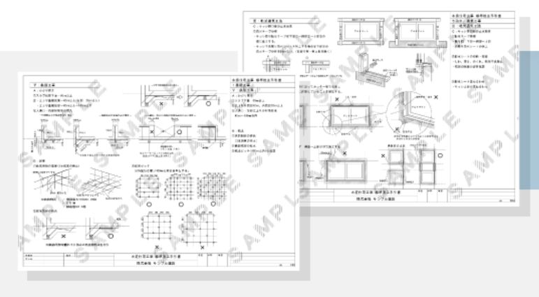
施工手引書とチェックリストの作成

その監査の前提となるのが、施工手引書とチェックリスト。
こちらは半年ぐらいの期間をかけて、当社の従来の施工方法を各工程ごとに分解し、
いままで現場ごとに口頭や図面で指示していた部分をすべて図解付きでマニュアル化。
業界経験のない、新人さんが入社してきてもこの通りに行えばリーフが今まで積み重ねてきた経験が伝わるようにしています。
この施工手引書通りに現場が進行しているかを見るチェックリストも同時に作成。
どんなポイントが大事で、どんな写真を何枚撮影しないといけないかも明示されています。
これらは工事完了後、工事記録書としてまとめられる予定です。
図現暮一致で品質向上

暮私たちが大切にしている言葉に
「図現暮一致(ずげんぼいっち)」
という言葉があります。
図 =「図面」
現 =「現場」
暮 =「暮らし」
が
すべて一致する事。
すなわち、
実現したい暮らしができるように図面を描き
その図面通りに現場が出来るように管理し
出来上がった空間が当初想定通りになっている
ということ。
今回はこの中の「現」の一致を高めるための取り組みでした。
大切なお客様の大切なお家を創り上げるために
一つ一つ実行していきたいと思います。
******************************************
最後までお読みいただきありがとうございました。
ブログに書けないような内容を普段のメルマガ形式でお届けしております。
メルマガではこんなことを配信しています
読者さんの為になる話
最新の住宅事情
土地の考え方
間取りの考え方
お金の性質の事
高気密高断熱住宅のコツ
ブログでは書けない業界の裏話
読者様限定の見学会
ご登録はこちらから↓
【ほぼ日刊リーフ通信】メルマガ
解除はいつでも簡単にできま~す♪是非ご登録を!
**************************************

大阪で高性能×インテリアの注文住宅ならリーフアーキテクチュア
株式会社リーフ 代表 猪倉 厚
1級建築士・宅建士・インテリアコーディネーター
Youtubeチャンネル開設しました。チャンネル登録お願いします!
リーフアーキテクチャ
〒589-0013大阪狭山市茱萸木6丁目1946番
TEL 072(284)7144 FAX 072(284)7145
****************************************