2024/09/11
南大阪で理想の平屋を新築するための完全ガイド:間取りから施工まで
はじめに
1級建築士で宅建士のリーフアーキテクチャ代表、猪倉(いくら)です。
南大阪で平屋の新築を検討する人が増えています。
平屋は、階段がなくワンフロアで生活が完結するため、特に高齢者や小さな子どもがいる家庭にとって非常に利便性が高い住宅スタイルです。
しかし、平屋を新築する際には間取りが重要なポイントとなります。
家族のライフスタイルや将来的なニーズを考慮した間取りを設計することで、より快適で満足度の高い住まいを実現できます。
このブログでは、「南大阪で平屋の新築」をテーマに、理想の間取りについて詳しく解説し、南大阪特有の事情に合わせた設計のポイントや人気の間取りパターンをご紹介します。

1.南大阪の平屋新築に最適な間取りとは
平屋新築の間取りを考える際、南大阪特有の気候や土地条件を考慮することが重要です。
また、ライフスタイルに合った間取りを選ぶことで、長く快適に暮らせる住まいを実現できます。
1-1:平屋のメリットとデメリット
平屋のメリットは、階段がないため生活動線がシンプルであることです。
これにより、毎日の移動が楽になり、高齢者や小さな子どもがいる家庭にとって安全です。
また、ワンフロアで生活が完結するため、家族間のコミュニケーションが取りやすく、家族全員が一体感を感じやすいのも特徴です。
一方、デメリットとしては、敷地面積が広く必要なため、都市部では土地選びが難しくなる場合があります。
また、建築費用が高くなる傾向にあるため、予算計画が重要です。
1-2:南大阪における平屋の需要
大阪は日本の中でも人口密度が高い都市で、特に都市部では土地の価格が高騰しています。
そのため、これまで二階建てや三階建てが主流でしたが、近年では郊外や新興住宅地での平屋建築の需要が高まっています。
特に、リタイア世代や子育て世代を中心に、広々とした敷地に平屋を建てるケースが増えています。
また、南大阪特有の蒸し暑い夏や湿度の高い環境に対応するため、夏の日射遮蔽、冬の日射取得、風通しなどのパッシブ設計や、断熱性能の高い素材を使用した平屋が人気です。
1-3:平屋新築のデザインと間取りのポイント
平屋を新築する際、どのようなデザインや間取りにするかは非常に重要です。
ここでは、理想の平屋を実現するために押さえておきたいデザインや間取りのポイントを解説します。
ポイント1: モダンと和風を融合させたデザイン
大阪で平屋を新築する場合、モダンなデザインと和風の要素を組み合わせることが人気です。例えば、外観はシンプルで現代的なデザインにしつつ、内部は木材を多く使った落ち着きのある空間にすることで、家全体に統一感が生まれます。
ポイント2: LDKを中心とした間取り設計
家族が集まりやすいLDK(リビング・ダイニング・キッチン)を中心にした間取りは、多くの家庭で人気があります。キッチンからリビングを見渡せるようなオープンな設計にすることで、家族全員が同じ空間で過ごしやすくなり、子育て世代にもおすすめです。
ポイント3: 機能性を重視したガレージ付き間取り
平屋にガレージをビルトインすることで、車のメンテナンスが楽になるだけでなく、雨の日でもスムーズに家の中に入れるというメリットがあります。
大阪郊外では、このような機能的な間取りも人気です。

2.南大阪の平屋新築の間取り設計
平屋の間取りを設計する際には、家族構成や生活スタイルに合わせた設計が必要です。また、南大阪の気候風土を考慮した間取りも重要です。
2-1: 家族構成に適した間取り
平屋の間取りは、家族構成に応じて柔軟に対応できる点が魅力です。
例えば、夫婦二人暮らしの場合、広めのLDKと一つの寝室があれば十分ですが、子育て世代の場合は、子ども部屋や遊びスペースを確保する必要があります。
また、将来的に親との同居を考える場合、プライバシーを確保しつつも、共に過ごせるスペースを設けることが重要です。
2-2: 生活動線を考慮した間取り
生活動線がスムーズであることは、平屋の大きな利点です。
キッチンからリビング、寝室までがワンフロアで繋がっているため、家事動線が短くなり、効率的に家事をこなすことができます。
また、動線を考慮することで、家族が自然に集まりやすい空間を作り出すことができます。
2-3: 収納スペースの重要性
大阪の都市部では、限られたスペースを有効に活用するため、収納スペースの確保が重要です。
例えば、ウォークインクローゼットやパントリーを設けることで、日常生活で使用する物をすっきりと収納でき、住空間を広く使うことができます。
また、床下収納や天井裏収納を活用することで、限られたスペースでも十分な収納を確保することが可能です。

3: 人気の平屋間取りパターン
大阪で人気の平屋の間取りには、いくつかの共通するパターンがあります。
3-1: コンパクト平屋の特徴
コンパクトな平屋は、土地の有効活用がしやすく、都市部や狭小地に最適です。
このタイプの平屋は、必要最低限の部屋数と機能をコンパクトにまとめることで、コストを抑えつつも快適な住まいを実現します。
また、シンプルな間取りにすることで、清掃やメンテナンスが楽になるというメリットもあります。
3-2: 3LDK以上の間取りの提案
家族が多い場合や、来客を想定している場合は、3LDK以上の広めの間取りが求められます。
この場合、リビングを広くとることで家族全員が集まりやすい空間を作り、プライベートな時間を大切にできるよう、寝室や子ども部屋をしっかりと分けて配置します。
また、将来的に子ども部屋を2つに分けることができるよう、可変性のある間取りにすることも考慮すると良いでしょう。
3-3: LDKを中心にした設計
LDKを中心に配置することで、家族が自然と集まりやすい空間が生まれます。
また、キッチンをオープンにすることで、調理をしながらでも家族とのコミュニケーションが取りやすくなります。
南大阪の平屋新築では、特にこのタイプの間取りが人気であり、開放的なリビングと一体化したダイニング・キッチンが特徴です。

4:大阪府の平屋物件の探し方
平屋新築を検討する際には、大阪府内での物件情報や土地選びのポイントを理解しておくことが重要です。
4-1: おしゃれな新築物件の探し方
南大阪でおしゃれな平屋を建てたいと思うなら、まずは土地選びが重要です。
駅からのアクセスが良い場所や、周辺環境が整っているエリアを選ぶことで、日常生活が便利になります。
また、土地の形状や広さを考慮して、設計プランを練ることも大切です。
インターネットでの検索だけでなく、不動産会社と連携し、実際に現地を見て確認することをお勧めします。
4-2: 中古住宅と新築の比較
中古の平屋住宅と新築を比較する際には、それぞれのメリット・デメリットを理解することが重要です。
中古住宅は、既存の物件を購入するためコストを抑えられる一方、リフォームやメンテナンスが必要になる場合があります。
新築は、最新の設備やデザインを取り入れられるメリットがありますが、初期費用が高くなる傾向があります。
南大阪の不動産市場では、特に土地が限られている都市部では中古住宅のリフォームが人気ですが、郊外では新築の平屋を建てるケースも増えています。
4-3: 建売物件のメリット
建売の平屋物件は、土地と建物がセットになっているため、購入手続きがスムーズです。
また、モデルハウスを見学できる場合が多く、実際の生活をイメージしやすいのも利点です。
大阪では、特に新興住宅地で建売物件が増えており、手頃な価格で購入できるため、初めての家づくりにも適しています。

5:平屋新築時のコストと予算
平屋を新築する際のコストや予算計画については、しっかりとした事前準備が必要です。
5-1: 2000万以下の平屋新築ガイド
限られた予算で平屋を新築する場合、建築コストを抑える工夫が求められます。
例えば、コンパクトな間取りにすることで建築費用を抑えたり、設備をシンプルにすることでコストダウンを図ることができます。
また、セルフビルドや一部DIYを取り入れることで、さらなるコスト削減が可能です。
南大阪では、郊外や地方に行けば土地代が安くなるため、予算内で理想の平屋を建てることも十分可能です。
5-2: 資金計画のポイント
平屋新築の資金計画を立てる際には、まず自己資金と借入額のバランスを考えることが重要です。
また、土地代や建築費用だけでなく、諸費用や予備費も計算に入れる必要があります。
住宅ローンを利用する場合は、将来的な返済計画をしっかりと考え、無理のない範囲で予算を組むことが大切です。
大阪での土地購入や建築費用はエリアによって大きく異なるため、複数の不動産業者や建築会社から見積もりを取り、比較検討することをお勧めします。
5-3: 規格住宅を活用したコストダウン
規格住宅の平屋は、設計や建築プロセスがあらかじめ決められているため、コストを抑えつつ、スピーディーに新築を実現できるのが魅力です。
規格住宅を選ぶことで、予算が限られている場合でも、デザイン性や機能性を犠牲にせず、理想の平屋を手に入れることが可能です。
また、設計費や工期が短縮されるため、最終的な建築コストを大幅に抑えることができます。
特に初めての家づくりや、シンプルで実用的な住まいを求めている方には、規格住宅が最適です。
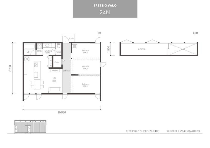
リーフアーキテクチャでは北欧デザインの平屋規格住宅「トレッティオバロ平屋」を扱っております。
コストを押させて平屋を実現したい方は是非ご検討ください。

6:理想の平屋を手に入れるために
理想の平屋を実現するためには、信頼できる工務店選びや建築のポイントを押さえることが重要です。
6-1: 信頼できる工務店の選定
工務店選びは、平屋新築の成否を左右する重要な要素です。
信頼できる工務店を選ぶためには、過去の施工実績や口コミを確認し、実際に話を聞くことが大切です。
また、大阪ならではの建築事情に精通しているかどうかも重要なポイントです。
地域に密着した工務店であれば、地元の土地事情や気候風土に適した家づくりが期待できます。
6-2: 性能重視の建築ポイント
平屋を建てる際には、耐震性や断熱性などの性能を重視した設計が求められます。
地震や台風に対する備えも重要であり、耐震等級や耐風性能をしっかりと確認することが大切です。
断熱性能を高めることで、夏の暑さや冬の寒さを快適に過ごすことができるため、エコで快適な暮らしを実現できます。
断熱性能を確認するには断熱等級(4~7まである)を確認しましょう。
今から家づくりを始めるなら最低でも断熱等級6出来れば7を目指せば快適な生活が送れます。
また、耐震性能を確認するには許容応力度計算で耐震等級3を取っているかを確認すると良いでしょう。
6-3: 完成見学会の利用法
完成見学会は、実際に建てられた家を見て、設計や住み心地を確認できる貴重な機会です。
平屋の新築を検討している場合、見学会に参加することで、間取りや設備の参考になります。
また、見学会では実際の施工例を見て工務店の技術力やデザイン性を確認できるため、工務店選びの判断材料としても役立ちます。
完成見学会以外にも、実際に住んでおられるOB客様邸見学会があれば、暮らし心地の生の声も聞けるのでお勧めです。

7:南大阪エリア別の平屋スタイル提案
南大阪には、地域ごとに異なる特性を持ったエリアが広がっており、それぞれに合った平屋の設計が理想的です。
ここでは、南大阪を3つのエリアに分けて、それぞれの特性に応じた平屋のスタイルを提案します。
7-1: 泉北ニュータウンや狭山ニュータウンの新興住宅地
泉北ニュータウンや狭山ニュータウンは、40〜50年前に開発された新興住宅地で、広めの敷地を持つ家が多いエリアです。
ここでは、既存の街並みに調和するようなデザインが好まれます。
例えば、モダンな平屋を建てつつも、周囲の家とのバランスを考えた落ち着いた外観デザインが理想です。
また、このエリアは静かでファミリー層も多いため、LDKを広く取り、家族が集まりやすい空間を作ることが重要です。
近年ではリノベーションも多く行われており、古い家を現代風にリフォームするケースも増えていますが、新築の場合はそのトレンドに合わせたデザインが求められます。
7-2: 河内長野市や南河内郡の和歌山に近いエリア
河内長野市や南河内郡は、和歌山に近い南大阪のエリアで、比較的地価が安い地域です。
このエリアでは、ゆったりとした土地が手に入りやすいため、広々とした平屋の設計が可能です。
自然豊かな環境を活かし、庭やテラスを設けた開放的なデザインが出来るでしょう。
大きな窓を使って自然光をたっぷり取り入れ、リビングと庭を一体化させた間取りが理想的です。
また、アウトドアを楽しめるスペースや家庭菜園ができる庭など、自然と共存する暮らしを意識した設計も可能です。
。家族でのんびり過ごせる、リゾート感覚の平屋が特におすすめです。
7-3: 旧市街地の昔ながらの街区
開発された住宅地に挟まれて残る旧市街地は、歴史ある街並みが残るエリアで、狭い道や密集した住宅街が特徴です。
このエリアでは、限られた敷地を有効に活用したコンパクトな平屋が求められます。
古い街区に合わせた伝統的な和風デザインや、周囲に馴染むシンプルなデザインが好まれます。
例えば、木材を多用したナチュラルな内装や、外観を落ち着いた色調でまとめることで、地域の雰囲気に調和する平屋が理想です。
また、敷地が狭いため、収納スペースを充実させた効率的な間取りや、プライバシーを確保できる工夫が重要です。
庭のスペースを確保できない場合でも、中庭や屋上庭園を設けることで、快適な暮らしを実現することができます。

8: 平屋建築の施工と契約
平屋を建てる際には、施工会社の選び方や契約時の注意点を押さえておくことが重要です。
8-1: 注意すべき施工会社の選び方
施工会社を選ぶ際には、過去の施工実績や評判をチェックすることが大切です。
また、見積もりを複数の会社から取ることで、適正な価格を知ることができます。
大阪の施工会社は、地域特有の建築法規や気候条件に詳しいところが多いため、地元での実績が豊富な会社を選ぶと安心です。
8-2: 契約時のチェックポイント
平屋新築の契約時には、工事内容や価格、工期について細かく確認することが必要です。
特に、追加工事が発生した際の対応や、引き渡し後のアフターフォローについても事前に確認しておくと安心です。
また、大阪では建築基準が厳しいエリアもあるため、法令遵守の観点からも注意が必要です。
8-3: 実績の確認方法
施工会社の実績を確認する方法として、過去の施工事例をチェックすることが有効です。
また、実際に施工された家を見学することで、会社の技術力やデザインセンスを直接確認できます。
大阪では、地域に密着した施工会社が多く、地元の評判や口コミも重要な参考材料となります。

9: 平屋新築の暮らし方
平屋に住み始めた後の暮らしを快適にするためには、空間の使い方や設備選びが重要です。
9-1: 開放的な空間作り
平屋の特徴を活かした開放的な空間作りは、快適な暮らしに直結します。
天井を高くしたり、大きな窓を設けることで、自然光を取り入れた明るい住まいを実現できます。
また、リビングと庭を繋げることで、室内と外を一体化した開放的な空間を作り出すことができます。
9-2: 快適な住まいを実現する設備
平屋新築時には、快適な暮らしを支える最新の設備を導入することが重要です。
例えば、床暖房や高性能エアコンを設置することで、一年中快適に過ごすことができます。
また、太陽光発電や蓄電池を導入することで、エコで経済的な住まいを実現できます。
大阪の気候に合わせた断熱材や防音設備も重要な要素です。
9-3: 家事動線を考えた生活
家事動線を考慮した間取りや家具配置は、日々の生活をスムーズにし、ストレスの少ない暮らしを実現します。
キッチンからリビングや洗濯スペースへの移動がスムーズになるように配置を工夫することで、家事の効率が大幅に向上します。
また、収納スペースを適切に配置することで、家の中がすっきりと保たれ、快適な住環境が維持できます。

10: まとめ
10-1: 南大阪での平屋新築の魅力と注意点
大阪で平屋を新築する魅力は、ワンフロアで生活が完結する利便性と、家族のコミュニケーションが取りやすい設計にあります。
しかし、都市部では土地選びや建築費用が課題となるため、予算計画や間取りの工夫が必要です。
特に南大阪特有の気候や都市環境を考慮した設計が重要であり、風通しや断熱性能を高めることが求められます。
10-2: 理想の間取りと生活動線の確保
理想の平屋を実現するためには、家族構成やライフスタイルに合った間取り設計が不可欠です。
生活動線を考慮した間取りは、日々の暮らしを快適にし、家事効率を向上させます。
また、収納スペースの配置やLDKを中心にした設計によって、住まい全体が使いやすくなり、家族が自然と集まる空間が生まれます。
10-3: 信頼できるパートナー選びと将来を見据えた家づくり
理想の平屋を手に入れるためには、信頼できる工務店や施工会社を選ぶことが成功の鍵です。
施工会社の実績や口コミを確認し、南大阪特有の建築事情に詳しいパートナーを選ぶことで、安心して家づくりを進めることができます。
また、資金計画や住宅ローンの利用を含め、将来的な維持費や住み心地も考慮した計画が大切です。
完成見学会や相談会を活用し、具体的なイメージを持って進めていきましょう。

関連記事
最新の施工事例はInstagramをご覧ください


